Porozmawiaj z nami 7 dni w tygodniu 606 705 388, 692 715 791 lub napisz: biuro@domtodom.pl
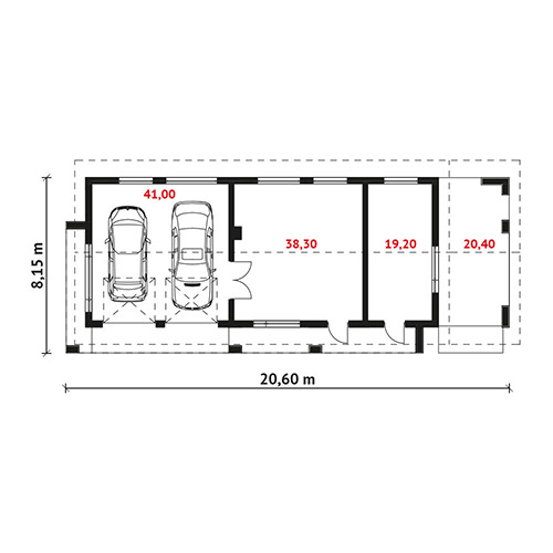
| Powierzchnia całkowita: | 118,90 m2 |
| Powierzchnia zabudowy: | 162,50 m2 |
| Kubatura: | 598,20 m3 |
| Kubatura pomieszczeń: | 440,00 m3 |
| Wysokość budynku: | 5,32 m |
| Wysokość do okapu: | 3,07 m |
Ściany zewnętrzne: dwuwarstwowe, bloczek gazobetonowy 24 cm + styropian 10 cm
Strop: brak
Schody: brak
Ścianka kolankowa: brak
Dach: dwuspadowy, nachylenie 30º, pokrycie z blachy płaskiej

Dbamy o najlepszą ofertę dla naszych Inwestorów.

W kilka chwil wybierzesz z nami swój wymarzony dom.

Pomożemy Ci we wszystkich formalnościach, dostosujemy projekt do Twoich indywidualnych potrzeb.

Projekt wymarzonego domu może być u Ciebie nawet następnego dnia po zamówieniu.