Porozmawiaj z nami 7 dni w tygodniu 606 705 388, 692 715 791 lub napisz: biuro@domtodom.pl
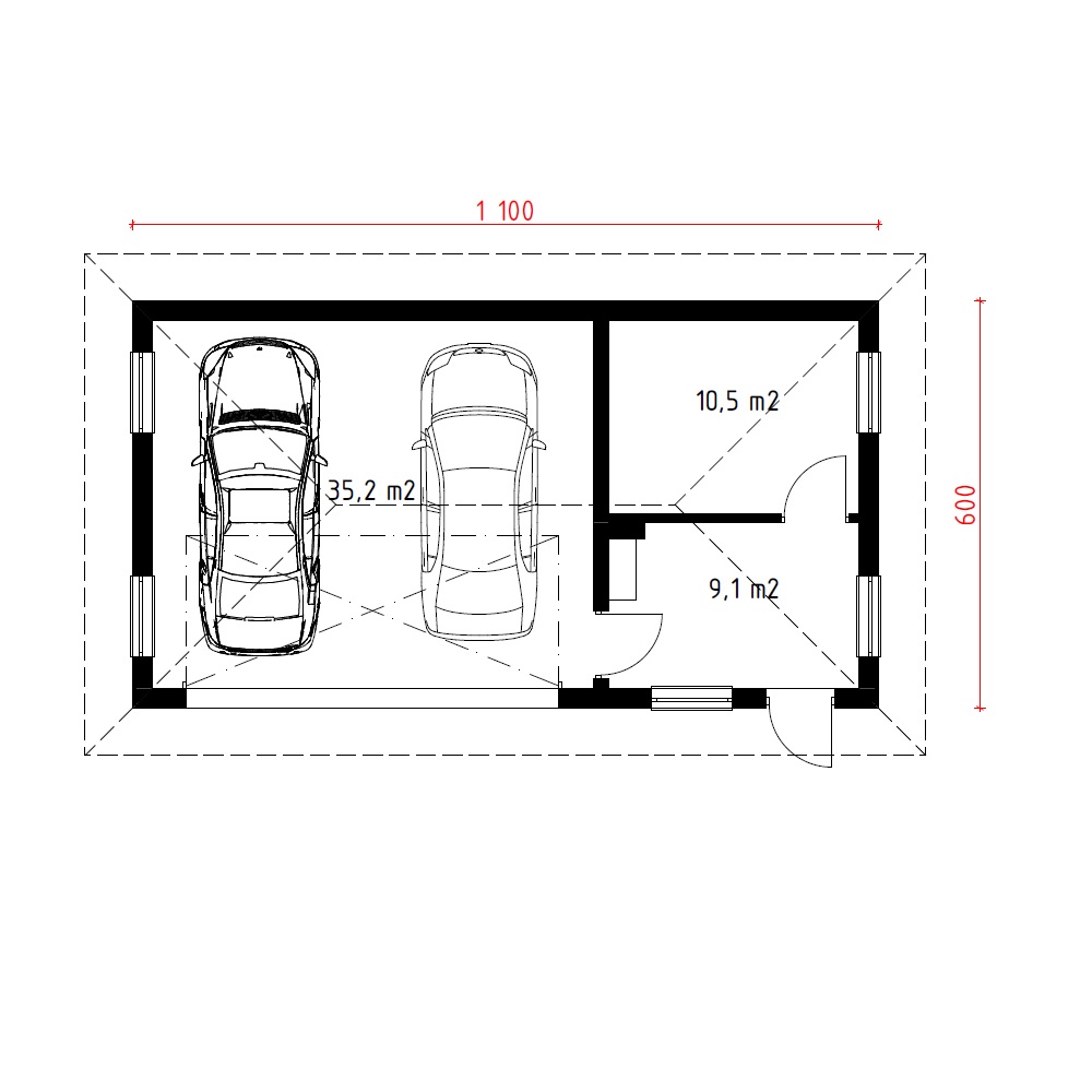
| Powierzchnia całkowita: | 54,83 m2 |
| Powierzchnia zabudowy: | 66,00 m2 |
| Kubatura: | 222,85 m3 |
| Kubatura pomieszczeń: | 135,40 m3 |
| Wysokość budynku: | 4,91 m |
| Wysokość do okapu: | 2,41 m |
Ściany zewnętrzne: dwuwarstwowe, bloczek gazobetonowy 24 cm + styropian 5 cm
Strop: płyta żelbetowa
Schody: brak
Ścianka kolankowa: brak
Dach: czterospadowy, nachylenie 30º, pokrycie z dachówki ceramicznej

Dbamy o najlepszą ofertę dla naszych Inwestorów.

W kilka chwil wybierzesz z nami swój wymarzony dom.

Pomożemy Ci we wszystkich formalnościach, dostosujemy projekt do Twoich indywidualnych potrzeb.

Projekt wymarzonego domu może być u Ciebie nawet następnego dnia po zamówieniu.