Porozmawiaj z nami 7 dni w tygodniu 606 705 388, 692 715 791 lub napisz: biuro@domtodom.pl
| Powierzchnia użytkowa: | 149,60 m2 |
| Powierzchnia całkowita: | 197,70 m2 |
| Powierzchnia zabudowy: | 125,80 m2 |
| Kubatura: | 478,76 m3 |
| Wysokość budynku: | 7,97 m |
| Wysokość do okapu: | b.d. |
Ściany zewnętrzne: gazobeton, ceramika, silikaty
Strop: betonowy gęstożebrowy
Schody: dwubiegowe, wachlarzowe
Ścianka kolankowa: 101 cm
Dach: dwuspadowy, nachylenie 35°, pokrycie z dachówki, blachodachówki
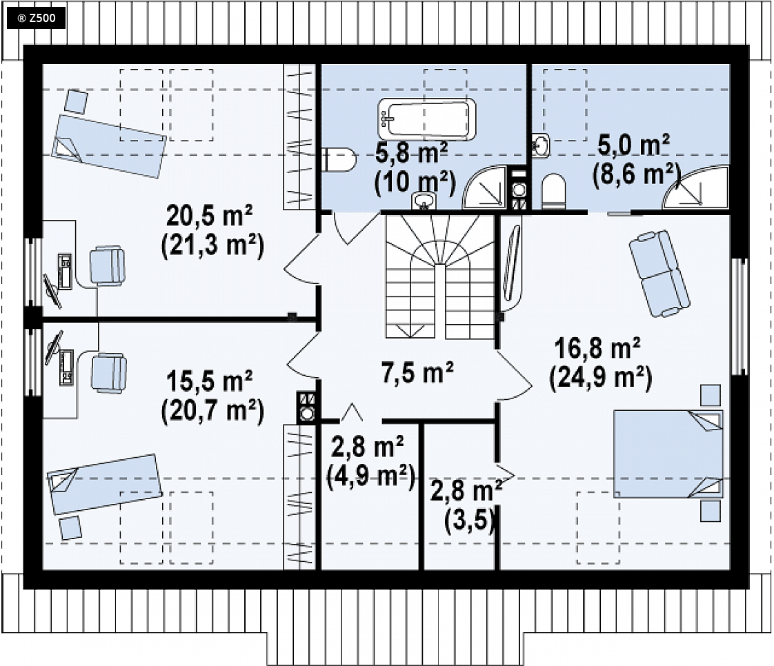
Projekt Z88 to wygodny dom z poddaszem użytkowym oraz garażem jednostanowiskowym w bryle. Dwuspadowy dach oraz prosta konstrukcja wpływają na optymalną oraz szybką i tanią budowę. Elewację domu można wykończyć elementami z drewna, co nada ciepłego oraz atrakcyjnego charakteru. Zadaszone wejście prowadzi do sieni, gdzie jest miejsce na pojemne szafy. Na parterze znajduje się również salon połączony z jadalnią i dobrze doświetloną kuchnią, WC, oraz pomieszczenie gospodarcze do którego mamy dostęp zarówno z kuchni jak i z garażu. Z jadalni mamy wyjście na zadaszony taras, przeszklone drzwi zapewnią kontakt z naturą i wprowadzą ją do wnętrza. Klatką schodowa wchodzimy na poddasze, tam znajdują się trzy sypialnie oraz dwie łazienki. W każdym z pomieszczeń jest miejsce na przestronne szafy, co pozwoli na łatwiejsze zachowanie porządku. Z88 jest domem funkcjonalnym i ekonomicznym, idealnym dla ludzi szukających niewielkiego domku, w którym piętro stanowi część sypialną, natomiast parter część dzienną.

Dbamy o najlepszą ofertę dla naszych Inwestorów.

W kilka chwil wybierzesz z nami swój wymarzony dom.

Pomożemy Ci we wszystkich formalnościach, dostosujemy projekt do Twoich indywidualnych potrzeb.

Projekt wymarzonego domu może być u Ciebie nawet następnego dnia po zamówieniu.