Porozmawiaj z nami 7 dni w tygodniu 606 705 388, 692 715 791 lub napisz: biuro@domtodom.pl
| Powierzchnia użytkowa: | 135,10 m2 |
| Powierzchnia całkowita: | 183,60 m2 |
| Powierzchnia zabudowy: | 110,30 m2 |
| Kubatura: | 403,50 m3 |
| Wysokość budynku: | 7,18 m |
| Wysokość do okapu: | b.d. |
Ściany zewnętrzne: gazobeton, ceramika, silikaty
Strop: betonowy gęstożebrowy
Schody: dwubiegowe
Ścianka kolankowa: 85 cm
Dach: dwuspadowy, nachylenie 32°/40°, pokrycie z dachówki, blachodachówki
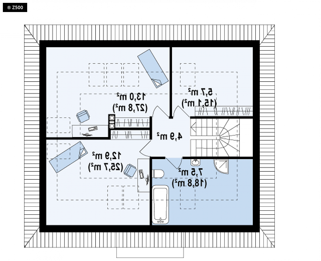
Z121 to projekt stworzony z myślą o prawdziwych pasjonatach klasyki. Jasne, ciepłe barwy, drewno na elewacji nadają mu uroku i elegancji. Wnętrze domu Z121 jest jasne i przestronne. Główną zaleta projektu jest ciekawe usytuowanie pomieszczenia gospodarczego. Centralna lokalizacja pozwala na optymalne zagospodarowanie przestrzeni parterowej. Dzięki temu możemy w pełni wykorzystać możliwości wypoczynkowe salonu, oraz zyskujemy dodatkowe miejsce na przechowywanie podręcznych produktów. Stylowy blat delikatnie oddziela strefę wypoczynkową od kuchennej. Duże okno z pięknym widokiem na ogród znakomicie umili wykonywanie codziennych obowiązków. Na parterze jest także przestronny pokój gościnny oraz doskonały gabinet do pracy. Na poddaszu znajdują się dwie wygodne sypialnie. Ich przestronne wymiary idealnie nadają się na chwilę relaksu czy odprężający wypoczynek. Na piętrze jest również spora garderoba oraz komfortowa łazienka.

Dbamy o najlepszą ofertę dla naszych Inwestorów.

W kilka chwil wybierzesz z nami swój wymarzony dom.

Pomożemy Ci we wszystkich formalnościach, dostosujemy projekt do Twoich indywidualnych potrzeb.

Projekt wymarzonego domu może być u Ciebie nawet następnego dnia po zamówieniu.