Porozmawiaj z nami 7 dni w tygodniu 606 705 388, 692 715 791 lub napisz: biuro@domtodom.pl
| Powierzchnia użytkowa: | 137,00 m2 |
| Powierzchnia całkowita: | 178,70 m2 |
| Powierzchnia zabudowy: | 126,80 m2 |
| Kubatura: | 436,20 m3 |
| Wysokość budynku: | 7,72 m |
| Wysokość do okapu: | b.d. |
Ściany zewnętrzne: gazobeton, ceramika, silikaty
Strop: betonowy gęstożebrowy
Schody: dwubiegowe
Ścianka kolankowa: -
Dach: dwuspadowy, nachylenie 40°, pokrycie z dachówki, blachodachówki
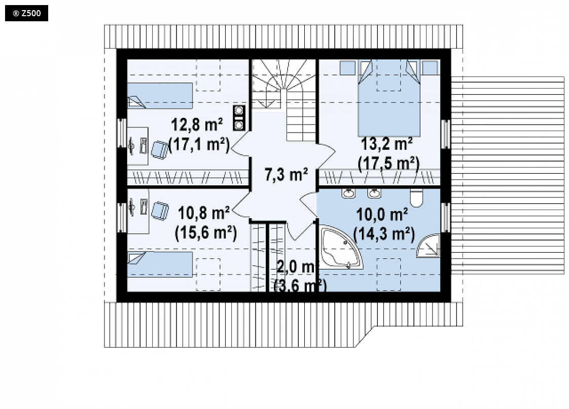
Z117 to funkcjonalny i atrakcyjny projekt. Jasne kolory, naturalne, drewniane elementy nadają mu estetycznego, świeżego wyglądu. Ciekawie wkomponowany wykusz na froncie podkreśla oryginalny i nowatorski charakter. Największą zaletą projektu jest jasny, przestronny salon. Jego okazałe wymiary pozwolą na komfortowy i rodzinny wypoczynek. Kuchnia delikatnie wydzielona blatem powiększa przestrzeń dzienną. Wygodny pokój na parterze może służyć jako pokój dla gości lub gabinet do pracy. Duża łazienka zapewni komfort codziennej toalety. Bocznie usytuowany garaż posiada podręczny schowek do przechowywania ogrodowych urządzeń. Na piętrze są trzy przestronne sypialnie. Tuż przy schodach znajduje się pojemna garderoba a obok niej praktyczna łazienka. Z117 to oryginalny projekt domu. Nie tylko prezentuje się wspaniale, ale także jest niezwykle funkcjonalny i wygodny. Optymalne, przemyślane wymiary zapewnią prawdziwy komfort użytkowania wszystkim domownikom.

Dbamy o najlepszą ofertę dla naszych Inwestorów.

W kilka chwil wybierzesz z nami swój wymarzony dom.

Pomożemy Ci we wszystkich formalnościach, dostosujemy projekt do Twoich indywidualnych potrzeb.

Projekt wymarzonego domu może być u Ciebie nawet następnego dnia po zamówieniu.