Porozmawiaj z nami 7 dni w tygodniu 606 705 388, 692 715 791 lub napisz: biuro@domtodom.pl
| Powierzchnia użytkowa: | 143,30 m2 |
| Powierzchnia całkowita: | 150,70 m2 |
| Powierzchnia zabudowy: | 160,40 m2 |
| Kubatura: | 408,54 m3 |
| Wysokość budynku: | 8,18 m |
| Wysokość do okapu: | b.d. |
Ściany zewnętrzne: gazobeton, ceramika, silikaty
Strop: b.d.
Schody: dwubiegowe
Ścianka kolankowa: 90 cm
Dach: dwuspadowy, nachylenie 40°, pokrycie z dachówki, blachodachówki
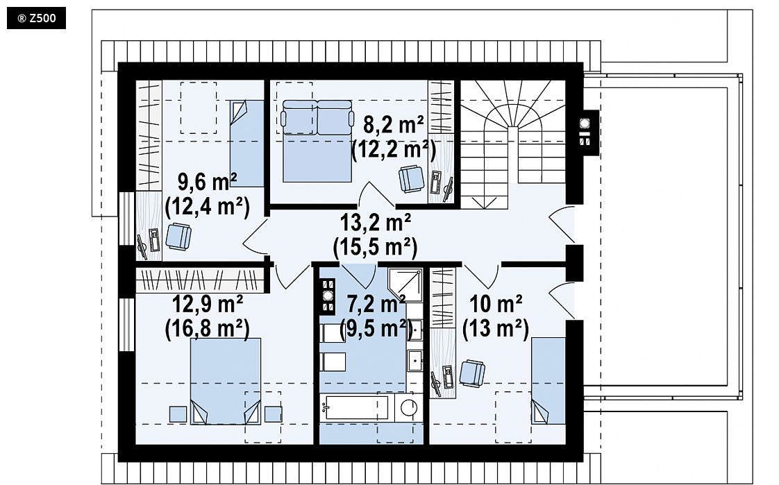
Z347 to dom, który posiada salon i kuchnię od frontu. Jego plan rozrysowano jako bryłę na planie prostokąta, z poddaszem użytkowym i dachem dwuspadowym. Proste elementy dekoracyjne służą jednocześnie jako zadaszenie wejścia i tarasu. Elewacja o biało-szarej kolorystyce daje wrażenie czystości, schludności i skromności. Wyżej wymienione atuty architektoniczne są korzystne dla kieszeni inwestora. Parter składa się z prawej i lewej części domu. Prawa - techniczna oraz garaż jednostanowiskowy i pomieszczenie gospodarcze. Zmieści się również kosiarka i inne potrzebne narzędzia do ogrodu czy samochodu. Lewa część domu to nasze dzienne centrum dowodzenia. Salon z wydzielona częścią jadalną i bezpośrednim wyjściem na taras stanowią duży pozytyw w wyborze miejsca konsumpcji śniadania. Spiżarkę doceni każda pani domu, natomiast w kuchni możemy zlikwidować ściankę działową przekształcając ją w aneks i powiększając w ten sposób przestrzeń salonową. Pod schodami prowadzącymi na piętro architekci umieścili łazienkę. Poddasze użytkowe zawiera 4 sypialnie oraz łazienkę, w której zmieści się prysznic, wanna, bidet i inne potrzebne do codziennej toalety sanitariaty. Okna dachowe doskonale doświetlą wnętrza pomieszczeń, a w nocy pozwolą docenić piękno jaśniejących na niebie gwiazd. Nad garażem znajduje się taras z wyjściami prowadzącymi z holu oraz z jednego z pokoi. Pozwoli nam on doświadczyć jeszcze większej swobody, którą cechuje mieszkanie w domku jednorodzinnym. Projekt Z347 dedykowany jest dla osób pragnących niedużym kosztem zaznać zasadniczej swobody i niezależności.

Dbamy o najlepszą ofertę dla naszych Inwestorów.

W kilka chwil wybierzesz z nami swój wymarzony dom.

Pomożemy Ci we wszystkich formalnościach, dostosujemy projekt do Twoich indywidualnych potrzeb.

Projekt wymarzonego domu może być u Ciebie nawet następnego dnia po zamówieniu.