Porozmawiaj z nami 7 dni w tygodniu 606 705 388, 692 715 791 lub napisz: biuro@domtodom.pl
| Powierzchnia użytkowa: | 99,10 m2 |
| Powierzchnia całkowita: | 99,10 m2 |
| Powierzchnia zabudowy: | 133,20 m2 |
| Kubatura: | 277,44 m3 |
| Wysokość budynku: | 5,62 m |
| Wysokość do okapu: | b.d. |
Ściany zewnętrzne: gazobeton, ceramika, silikaty
Strop: b.d.
Schody: brak
Ścianka kolankowa: brak
Dach: wielospadowy, nachylenie 25°, pokrycie z dachówki, blachodachówki
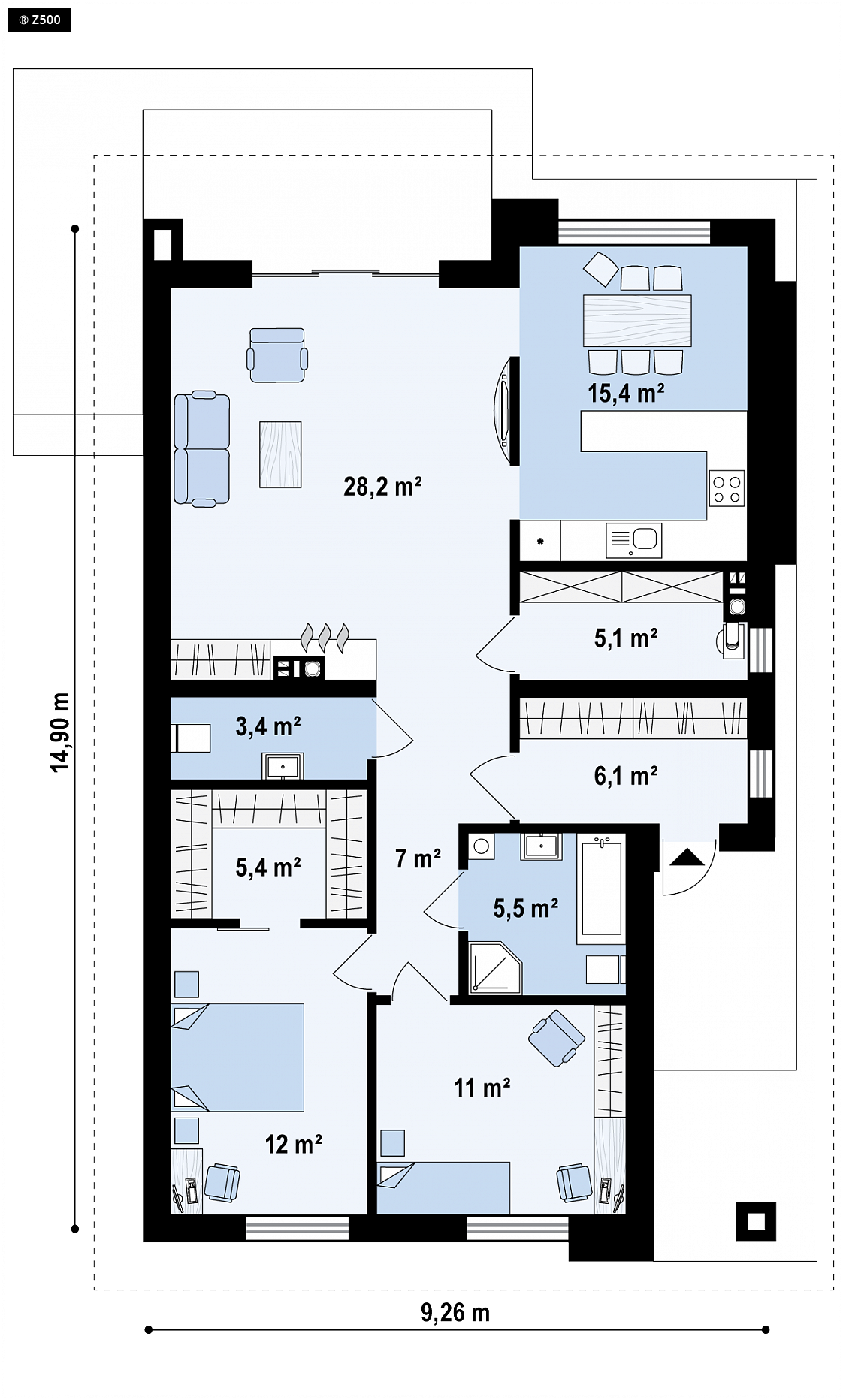
Z356 jest domem parterowym, o czterospadowym dachu kopertowym i kalenicą prostopadłą do drogi. Dedykowany jest dla osób poszukujących projektu na wąską działkę. Trójkolorowa elewacja składa się z okładzin w postaci cienkowarstwowego tynku, drewna i płyt elewacyjnych. Zadaszone wejście prowadzi do sieni, skąd po wejściu do wnętrza domu możemy wypocząć w prawej, dziennej części domu, lub lewej, nocnej. Przestronny, z częściowo zadaszonym tarasem i dobrze doświetlającymi oknami salon, jest znakomitym miejscem spotkań wszystkich domowników. To tutaj, w blasku ciepłego kominka, przy filiżance gorącej, aromatycznej herbaty, będziemy opowiadać sobie o troskach i trudach dnia codziennego. Kuchnia może zostać całkowicie zamknięta lub otwarta - wedle potrzeby i uznania. Pomieszczenie gospodarcze pełni również funkcję pomieszczenia gospodarczego. To tutaj umieścimy szczotki, odkurzacz i wszystkie przybory potrzebne do sprzątania. Wc zaprojektowano przy salonie po to, aby odwiedzający nas goście nie musieli wchodzić do drugiej, prywatnej części domu. Nocna część domu składa się z 2 sypialni, z których jedna posiada własna garderobę. Dokładnie taką, o jakiej marzy każda kobieta. Projekt Z356 stanowi dobry wariant domu MDM, ponieważ nie przekracza powierzchni 100 m2,przy jednoczesnym zachowaniu komfortu użytkowania.

Dbamy o najlepszą ofertę dla naszych Inwestorów.

W kilka chwil wybierzesz z nami swój wymarzony dom.

Pomożemy Ci we wszystkich formalnościach, dostosujemy projekt do Twoich indywidualnych potrzeb.

Projekt wymarzonego domu może być u Ciebie nawet następnego dnia po zamówieniu.