Porozmawiaj z nami 7 dni w tygodniu 606 705 388, 692 715 791 lub napisz: biuro@domtodom.pl
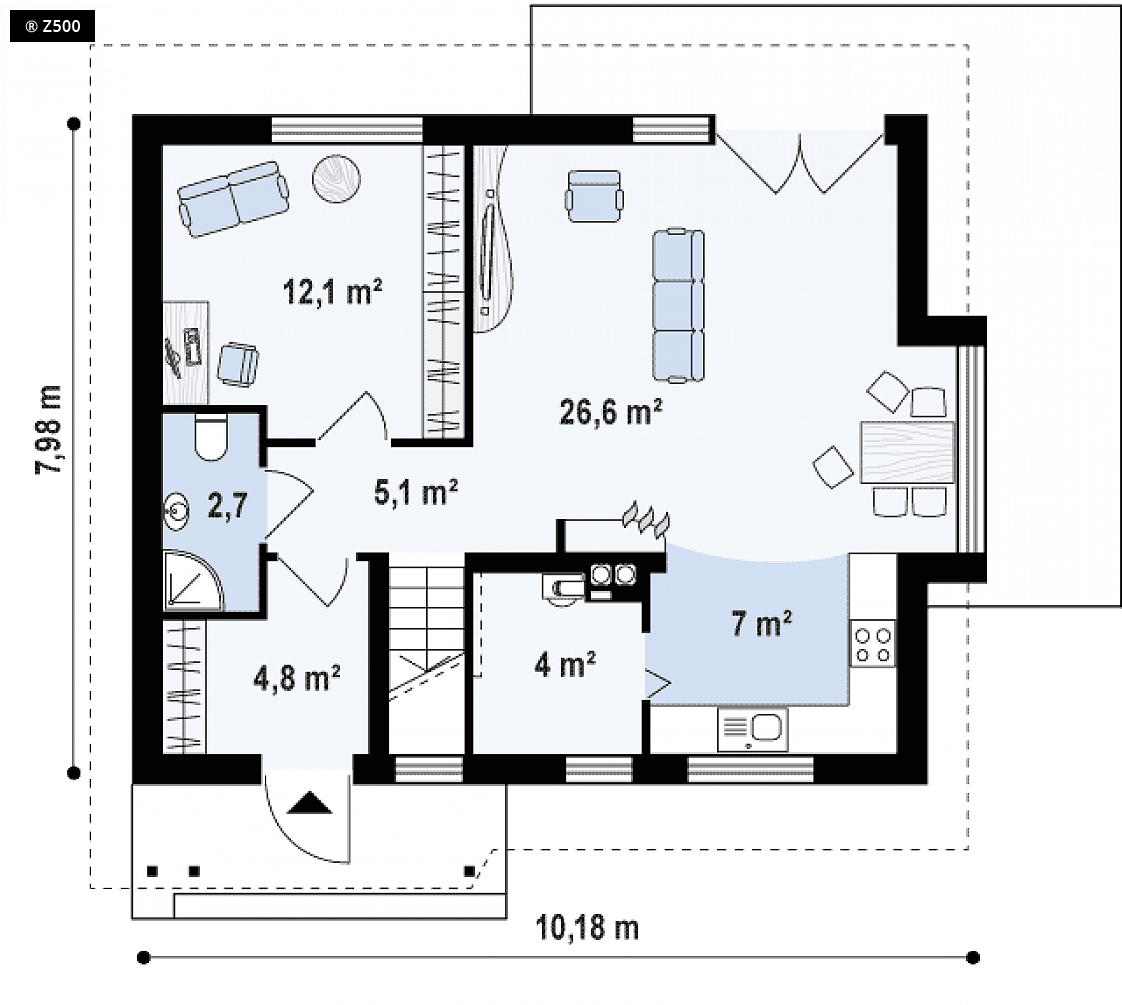
| Powierzchnia użytkowa: | 100,20 m2 |
| Powierzchnia całkowita: | 121,70 m2 |
| Powierzchnia zabudowy: | 77,90 m2 |
| Kubatura: | 281,72 m3 |
| Wysokość budynku: | 7,49 m |
| Wysokość do okapu: | b.d. |
Ściany zewnętrzne: gazobeton, ceramika, silikaty
Strop: betonowy gęstożebrowy
Schody: dwubiegowe
Ścianka kolankowa: 68 cm
Dach: dwuspadowy, nachylenie 40°, pokrycie z dachówki, blachodachówki

Dbamy o najlepszą ofertę dla naszych Inwestorów.

W kilka chwil wybierzesz z nami swój wymarzony dom.

Pomożemy Ci we wszystkich formalnościach, dostosujemy projekt do Twoich indywidualnych potrzeb.

Projekt wymarzonego domu może być u Ciebie nawet następnego dnia po zamówieniu.