Porozmawiaj z nami 7 dni w tygodniu 606 705 388, 692 715 791 lub napisz: biuro@domtodom.pl
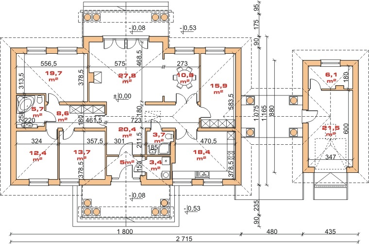
| Pow. użytkowa | 162.10 m² |
| + Kotłownia | 3.40 m² |
| + Pom. gospodarcze | 6.10 m² |
| + Garaż | 21.50 m² |
| Pow. zabudowy | 237.20 m² |
| Kubatura | 827.00 m³ |
| Wysokość | 7.10 m |
| Kąt dachu | 30° |
| Pow. dachu | 384.00 m |
| Min. działka | 21.75 x 33.15 m |
| Ściany zewn. | pustak ceramiczny 44cm |
| Ściany nośne | pustak ceramiczny 25cm |
| Strop | monolityczny żelbetowy |
| Pokrycie dachu | dachówka ceramiczna lub betonowa |
Klasyczna bryła jednorodzinnego domu parterowego cechująca projekt gotowy Dom przy Akacjowej pozwala na funkcjonalne rozplanowanie wnętrza. Centralnie zlokalizowany pokój dzienny oddziela strefę sypialna z trzema pokojami oraz łazienka od części dziennej z kuchnią, pokojem gościnnym, łazienką i kotłownią. Garaż jednostanowiskowy z pomieszczeniem gospodarczym połączony został z budynkiem przewiązką.

Dbamy o najlepszą ofertę dla naszych Inwestorów.

W kilka chwil wybierzesz z nami swój wymarzony dom.

Pomożemy Ci we wszystkich formalnościach, dostosujemy projekt do Twoich indywidualnych potrzeb.

Projekt wymarzonego domu może być u Ciebie nawet następnego dnia po zamówieniu.