Porozmawiaj z nami 7 dni w tygodniu 606 705 388, 692 715 791 lub napisz: biuro@domtodom.pl
| Powierzchnia użytkowa: | 113,80 m2 |
| Powierzchnia całkowita: | 152,00 m2 |
| Powierzchnia zabudowy: | 97,20 m2 |
| Kubatura: | 391,10 m3 |
| Wysokość budynku: | 8,29 m |
| Wysokość do okapu: | b.d. |
Ściany zewnętrzne: gazobeton, ceramika, silikaty
Strop: betonowy gęstożebrowy
Schody: zabiegowe
Ścianka kolankowa: 111 cm
Dach: dwuspadowy, nachylenie 40°, pokrycie z dachówki, blachodachówki, blachy
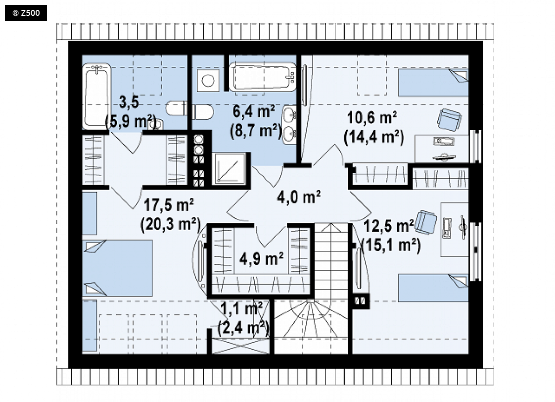
Projekt Z183 to elegancka propozycja domu o prostej bryle z dachem dwuspadowym. Okładzina z paneli włókno cementowych nadaje mu niepowtarzalnego uroku. Charakterystycznymi elementami domu są poziome zadaszenia zarówno strefy wejściowej jak i części tarasowej. Mały ale funkcjonalny, z centralnie zaprojektowaną klatką schodową, którą doświetla dodatkowo okno połaciowe. Na parterze znajduje się garaż wbudowany w bryłę budynku i spora kotłownia. Zaletą tego projektu jest pojedynczy komin co obniża koszty budowy i powoduje mniejsze straty ciepła. W części parterowej znajduje się część dzienno-rekreacyjna z dużym tarasem. Zaprojektowano dom z małą ilością komunikacji, z trzema sypialniami na poddaszu gdzie znajdują się też dwie garderoby i dwie łazienki. Z183 to idealna propozycja dla wszystkich szukających domu o wysmakowanej formie i funkcjonalnych rozwiązaniach.

Dbamy o najlepszą ofertę dla naszych Inwestorów.

W kilka chwil wybierzesz z nami swój wymarzony dom.

Pomożemy Ci we wszystkich formalnościach, dostosujemy projekt do Twoich indywidualnych potrzeb.

Projekt wymarzonego domu może być u Ciebie nawet następnego dnia po zamówieniu.