Porozmawiaj z nami 7 dni w tygodniu 606 705 388, 692 715 791 lub napisz: biuro@domtodom.pl
| Powierzchnia użytkowa: | 130,50 m2 |
| Powierzchnia całkowita: | 179,40 m2 |
| Powierzchnia zabudowy: | 134,80 m2 |
| Kubatura: | 543,70 m3 |
| Wysokość budynku: | 8,12 m |
| Wysokość do okapu: | b.d. |
Ściany zewnętrzne: gazobeton, ceramika, silikaty
Strop: betonowy gęstożebrowy
Schody: dwubiegowe
Ścianka kolankowa: 90 cm
Dach: dwuspadowy, nachylenie 38°, pokrycie z dachówki, blachodachówki
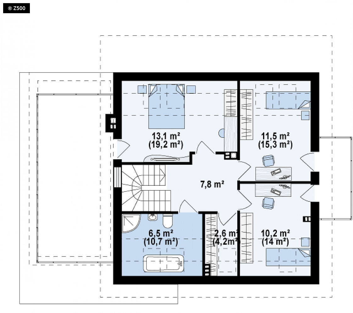
Z231 to propozycja domu o prostej bryle z dwuspadowym dachem. Starannie dobrane dodatki oraz drewniane elementy elewacji dodają mu walorów estetycznych. Na parterze znajduje się duży, jasny salon połączony z jadalnią i częściowo wydzielona kuchnia. Zlokalizowano tu również dodatkowy pokój, który może służyć jako gabinet albo pokój gościnny, oraz łazienkę z miejscem na prysznic. Z sieni jest bezpośredni dostęp do garażu jednostanowiskowego, na którego tyłach znajduje się spore pomieszczenie gospodarcze. Na piętrze umieszczono trzy duże sypialnie, garderobę oraz łazienkę, która pomieści zarówno wannę, jak i prysznic. Projekt Z231 to idealna propozycja dla osób lubiących innowacyjne,przemyślane rozwiązania. Jego niepowtarzalną formę i funkcjonalny układ pomieszczeń doceni każdy kto w nim zamieszka.

Dbamy o najlepszą ofertę dla naszych Inwestorów.

W kilka chwil wybierzesz z nami swój wymarzony dom.

Pomożemy Ci we wszystkich formalnościach, dostosujemy projekt do Twoich indywidualnych potrzeb.

Projekt wymarzonego domu może być u Ciebie nawet następnego dnia po zamówieniu.