Porozmawiaj z nami 7 dni w tygodniu 606 705 388, 692 715 791 lub napisz: biuro@domtodom.pl
| Powierzchnia użytkowa: | 168,90 m2 |
| Powierzchnia całkowita: | 186,00 m2 |
| Powierzchnia zabudowy: | 127,30 m2 |
| Kubatura: | 459,41 m3 |
| Wysokość budynku: | 9,06 m |
| Wysokość do okapu: | b.d. |
Ściany zewnętrzne: gazobeton, ceramika, silikaty
Strop: betonowy gęstożebrowy
Schody: zabiegowe
Ścianka kolankowa: -
Dach: wielospadowy, nachylenie 40°, pokrycie z dachówki, blachodachówki
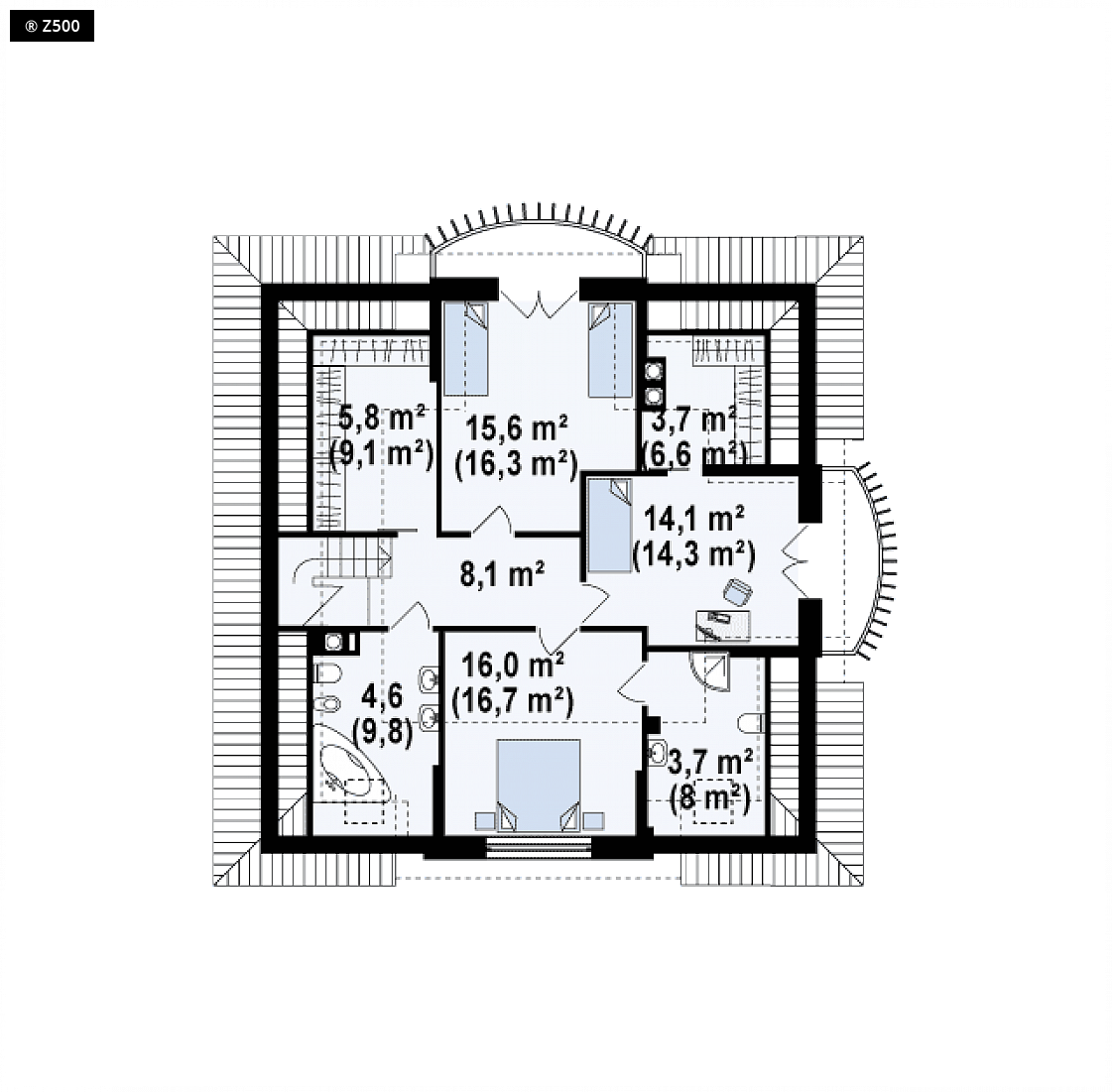
Z18 wykonano na rzucie zbliżonym do kwadratu. Wygląd zewnętrzny łączy klasykę ze współczesnymi rozwiązaniami. Kopertowy dach, lukarny, imponujący półokrągły taras, jak również klasyczne słupy podpierające podcień czynią dom dostojnym i eleganckim. Z holu głównego wchodzimy na schody oraz do pokoju gościnnego, który może pełnić rolę gabinetu. Hol wejściowy wtapia się w pokój dzienny tworząc jednoprzestrzenne wnętrze. W pokoju dziennym wydzielono aneks wypoczynkowy kominkowy i telewizyjny. Komin zaprojektowano tak, aby była możliwość usytuowania na zadaszonym tarasie kominka zewnętrznego. Przy kuchni przewidziano małą, ale wygodną spiżarkę oraz miejsce do spożywania posiłków. Na poddaszu istnieje możliwość wygospodarowania nawet 3 sypialni z garderobami oraz dwóch łazienek. Dwie sypialnie na poddaszu posiadają balkony, z widokiem na ogród.

Dbamy o najlepszą ofertę dla naszych Inwestorów.

W kilka chwil wybierzesz z nami swój wymarzony dom.

Pomożemy Ci we wszystkich formalnościach, dostosujemy projekt do Twoich indywidualnych potrzeb.

Projekt wymarzonego domu może być u Ciebie nawet następnego dnia po zamówieniu.