Porozmawiaj z nami 7 dni w tygodniu 606 705 388, 692 715 791 lub napisz: biuro@domtodom.pl
| Powierzchnia użytkowa: | 136,70 m2 |
| Powierzchnia całkowita: | 169,30 m2 |
| Powierzchnia zabudowy: | 140,20 m2 |
| Kubatura: | 435,43 m3 |
| Wysokość budynku: | 5,79 m |
| Wysokość do okapu: | b.d. |
Ściany zewnętrzne: gazobeton, ceramika, silikaty
Strop: betonowy gęstożebrowy
Schody: zabiegowe
Ścianka kolankowa: 159 cm
Dach: dwuspadowy, nachylenie 25°, pokrycie z dachówki, blachodachówki
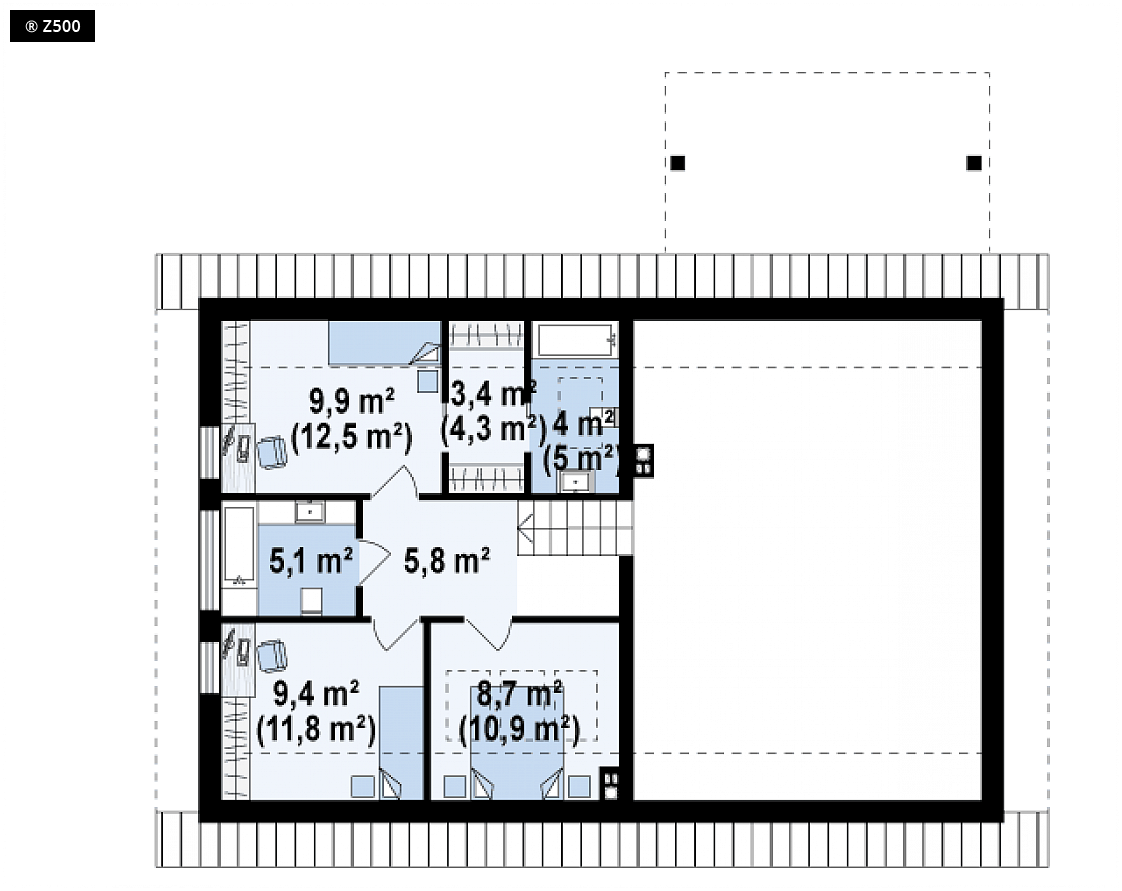
Przykład domu który łączy w sobie dwa style. Tradycyjny i nowoczesny. Klasyczny dach dwuspadowy jest jednym z tańszych w budowie, natomiast duże przeszklenia, pergola zadaszająca wejście nad tarasem oraz połączenie bieli z drewnem nadają mu ciepła, a także smaku w stylu modern. W częściowym podpiwniczeniu znajduje się jednostanowiskowy garaż oraz schowek na narzędzia. Obok sąsiadująca siłownia – wszakże należy nam się coś od życia… I żona nie będzie narzekać, że „pijesz piwo przed TV”! Po przeciwnej stronie siłowni - pomieszczenie gospodarcze wraz z pralnią. Małżonka zapewne całkiem wpadnie w zachwyt jeśli mąż przy okazji niepicia piwa podczas wizyty w siłowni dodatkowo nastawi pranie… Wszak miał po drodze… Same plusy! Poziom „0” to dzienna strefa budynku. Przestronny, ustawny salon o płaszczyźnie kwadratu jest najbardziej ustawną formą jeśli chodzi o możliwość doskonałego umeblowania pokoju. Kominek i duże portfenetrowe okna będą dodatkowym atutem. Aneks kuchenny można oddzielić ścianką działową przekształcając go w zamkniętą kuchnię. Wówczas nikt z odwiedzających nas gości nie będzie podglądał naszego mini bałaganu powstałego przy sztuce jaką jest gotowanie. Na półpiętrze zaprojektowano trzy pokoje, z których jeden powstał z myślą o sypialni rodziców, dlatego posiada prywatną łazienkę i garderobę. Wspomnianą łazienkę, podobnie jak jeden z pokoi przeznaczonych dla dzieci, doświetlono oknami dachowymi. Półpiętro stanowi prywatną część domu. Znakomicie pełni funkcję oddzielenia części sypialnianej od reszty domu.

Dbamy o najlepszą ofertę dla naszych Inwestorów.

W kilka chwil wybierzesz z nami swój wymarzony dom.

Pomożemy Ci we wszystkich formalnościach, dostosujemy projekt do Twoich indywidualnych potrzeb.

Projekt wymarzonego domu może być u Ciebie nawet następnego dnia po zamówieniu.