Porozmawiaj z nami 7 dni w tygodniu 606 705 388, 692 715 791 lub napisz: biuro@domtodom.pl
| Powierzchnia użytkowa: | 101,80 m2 |
| Powierzchnia całkowita: | 116,10 m2 |
| Powierzchnia zabudowy: | 77,90 m2 |
| Kubatura: | 281,98 m3 |
| Wysokość budynku: | 7,31 m |
| Wysokość do okapu: | b.d. |
Ściany zewnętrzne: gazobeton, ceramika, silikaty
Strop: betonowy gęstożebrowy
Schody: dwubiegowe, wachlarzowe
Ścianka kolankowa: 123 cm
Dach: dwuspadowy, nachylenie 35°, pokrycie z dachówki, blachodachówki
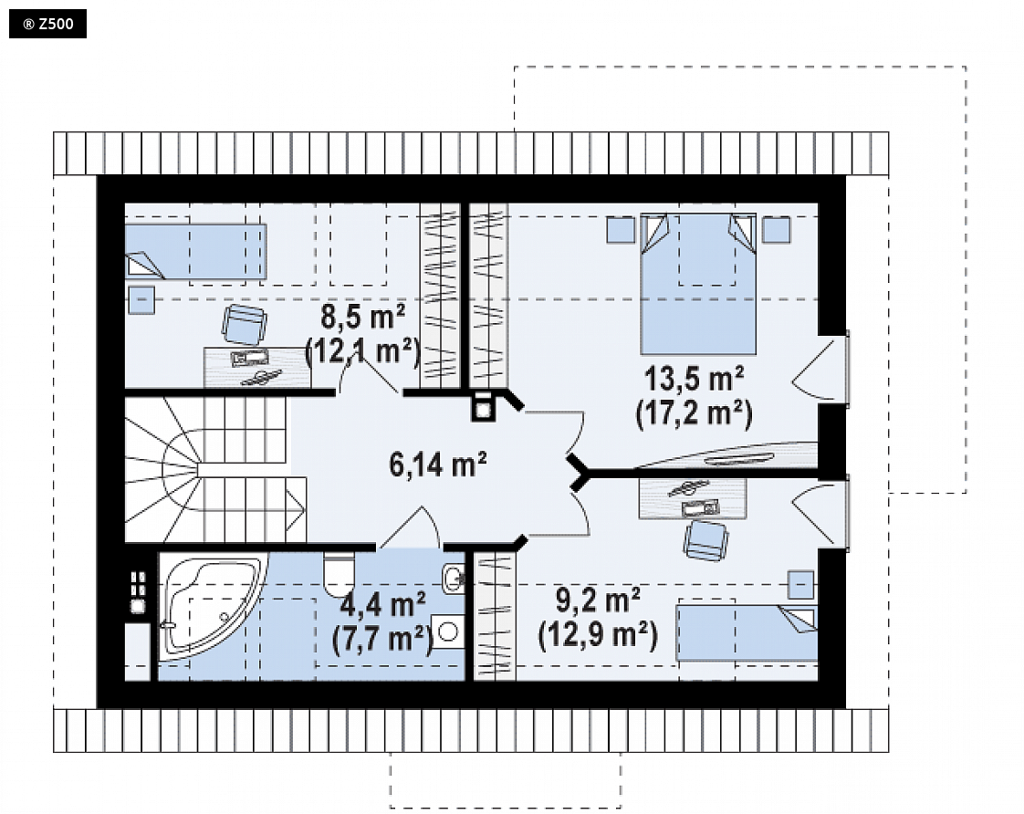
Projekt Z233 jest to funkcjonalny dom z poddaszem użytkowym. Prosta bryła przykryta dachem dwuspadowym została ciekawie wykończona przez zastosowanie drewnianych elementów które idealnie komponują się z jasnym tynkiem. Na parterze znajduje się strefa dzienna budynku. Przestronny salon połączony został z kuchnią oraz wyjściem na taras. W centralnej części domu umieszczono hol, który jest łącznikiem pomiędzy poszczególnymi pomieszczeniami. Duża zaletą tego projektu jest spore pomieszczenie gospodarcze oraz pokój, który może służyć jako gabinet bądź pokój gościnny. Na parterze jest także wc, oraz sień z miejscem na szafę wnękową. Poddasze to strefa nocna budynku, w której znajdują się 3 sypialnie, w tym dwie z wyjściem na balkon oraz ogólnodostępna łazienka. Z233 to praktyczny projekt domu, który ze względu na niewielką szerokość elewacji frontowej pozwoli ulokować budynek także na wąskiej działce (13,44m).

Dbamy o najlepszą ofertę dla naszych Inwestorów.

W kilka chwil wybierzesz z nami swój wymarzony dom.

Pomożemy Ci we wszystkich formalnościach, dostosujemy projekt do Twoich indywidualnych potrzeb.

Projekt wymarzonego domu może być u Ciebie nawet następnego dnia po zamówieniu.