Porozmawiaj z nami 7 dni w tygodniu 606 705 388, 692 715 791 lub napisz: biuro@domtodom.pl
| Powierzchnia użytkowa: | 108,20 m2 |
| Powierzchnia całkowita: | 156,00 m2 |
| Powierzchnia zabudowy: | 107,90 m2 |
| Kubatura: | 363,67 m3 |
| Wysokość budynku: | 6,90 m |
| Wysokość do okapu: | b.d. |
Ściany zewnętrzne: gazobeton, ceramika, silikaty
Strop: betonowy gęstożebrowy
Schody: zabiegowe
Ścianka kolankowa: 75 cm
Dach: dwuspadowy, nachylenie 35°, pokrycie z dachówki, blachodachówki
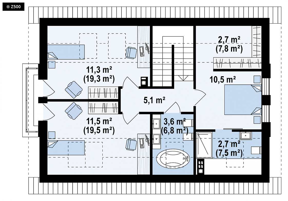
Z95 A to projekt domu o powierzchni użytkowej niecałych 110 m2. Prosty dach dwuspadowy bez dodatkowego zadaszenia nad wejściem jak w wersji podstawowej, jest niedrogi w budowie. Wejście zostało delikatnie cofnięte i osłonięte aby deszcz nie przeszkadzał nam w poszukiwaniu kluczy. Elewacja jest prosta i surowa. Została wykończona jasnym kolorem, w większości użyto białego tynku, jasnego drewna i ciemnych obramowań. Taras od strony ogrodu zadaszono pergolą z ciemnego drewna, prowadzą na niego wyjścia z salonu i z gabinetu. W parterze znajduje się sień a z niej przejście do dużego pomieszczenia gospodarczego z piecem na paliwo stałe. Można tam okno zamienić na drzwi, dzięki czemu uzyskamy wyjście na zewnątrz. Z pomieszczeniem gospodarczym sąsiaduje łazienka z miejscem przeznaczonym na pralkę. Doświetlono ją oknem aby było widniej. Ustawny gabinet zaprojektowano na płaszczyźnie zbliżonej do kwadratu aby wielbiciele przemeblowań mieli pole do popisu… Wyjście na taras stanowi dodatkowy atut. Pod schodami znajduje się schowek z przeznaczeniem na środki czystości, odkurzacz, szczotki czy choinkę. Lewa część domu to strefa dzienna - z przestronną kuchnią i bogato doposażoną spiżarką. Wydzielona część jadalna w wykuszu celowo została umiejscowiona oddzielnie aby podkreślić odrębność jadalni. Kominek umieszczony centralnie, więc będzie cieszył nasze oczy z każdego miejsca w salonie. Duże przeszklenia z wyjściem na taras podkreślają okazałość pomieszczenia. Poddasze użytkowe składa się z trzech sypialni. Jedna z nich posiada prywatną łazienkę i garderobę. Pozostałe dwie mogą być pokojami dla dzieci. Z każdego z pokoi prowadzi wyjście na niewielki balkon umiejscowiony nad wykuszem. Wnętrza doświetlono oknami dachowymi oraz oknami szczytowymi. Projekt dedykowany jest dla osób lubiących tradycyjny ale prosty i nowoczesny styl.

Dbamy o najlepszą ofertę dla naszych Inwestorów.

W kilka chwil wybierzesz z nami swój wymarzony dom.

Pomożemy Ci we wszystkich formalnościach, dostosujemy projekt do Twoich indywidualnych potrzeb.

Projekt wymarzonego domu może być u Ciebie nawet następnego dnia po zamówieniu.