Porozmawiaj z nami 7 dni w tygodniu 606 705 388, 692 715 791 lub napisz: biuro@domtodom.pl
| Powierzchnia użytkowa: | 75,40 m2 |
| Powierzchnia całkowita: | 92,30 m2 |
| Powierzchnia zabudowy: | 62,90 m2 |
| Kubatura: | 213,71 m3 |
| Wysokość budynku: | 7,35 m |
| Wysokość do okapu: | b.d. |
Ściany zewnętrzne: gazobeton, ceramika, silikaty
Strop: betonowy gęstożebrowy
Schody: dwubiegowe, wachlarzowe
Ścianka kolankowa: 92 cm
Dach: dwuspadowy, nachylenie 40°, pokrycie z dachówki, blachodachówki
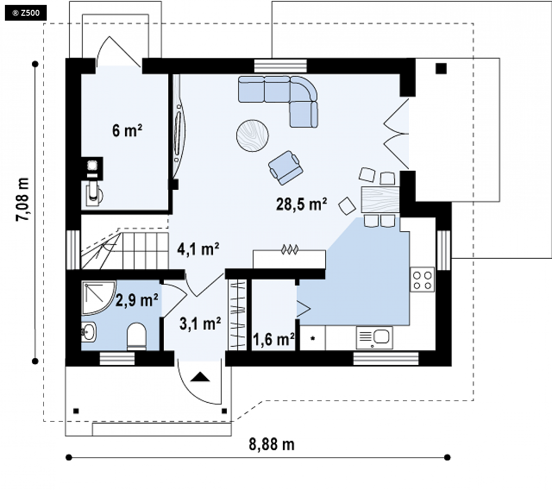
Projekt z 71 eg jest domem dość oryginalnym w swym wyglądzie, a zarazem zwartym w swojej formie. Dzięki prostej bryle z dwuspadowym dachem, umożliwia to szybką i niedrogą realizację. Na parterze znajduje się kuchnia z niewielką spiżarnią, jadalnia oraz salon. Wszystkie te pomieszczenia zostały integralnie połączone. Dodatkowo umieszczono pomieszczenie gospodarcze dostępne z zewnątrz oraz łazienkę. Na piętro prowadzi klatka schodowa. Znajdują się tam trzy pokoje, każdy posiada miejsce na szafę - garderobę i dość przestronna łazienka.

Dbamy o najlepszą ofertę dla naszych Inwestorów.

W kilka chwil wybierzesz z nami swój wymarzony dom.

Pomożemy Ci we wszystkich formalnościach, dostosujemy projekt do Twoich indywidualnych potrzeb.

Projekt wymarzonego domu może być u Ciebie nawet następnego dnia po zamówieniu.