Porozmawiaj z nami 7 dni w tygodniu 606 705 388, 692 715 791 lub napisz: biuro@domtodom.pl
| Powierzchnia użytkowa: | 79,30 m2 |
| Powierzchnia całkowita: | 93,90 m2 |
| Powierzchnia zabudowy: | 65,00 m2 |
| Kubatura: | 222,20 m3 |
| Wysokość budynku: | 7,12 m |
| Wysokość do okapu: | b.d. |
Ściany zewnętrzne: gazobeton, ceramika, silikaty
Strop: wiązary
Schody: zabiegowe
Ścianka kolankowa: 69 cm
Dach: dwuspadowy, nachylenie 40°, pokrycie z dachówki, blachodachówki
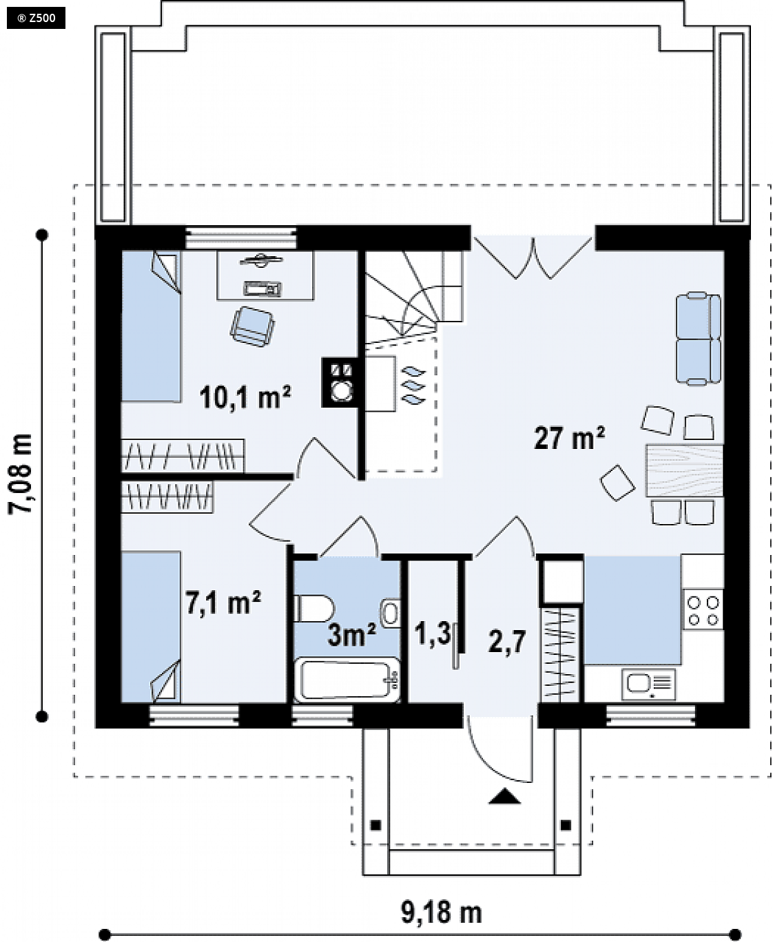
Projekt domu Z32 na pewno spodoba się tym, którzy szukają domu małego, taniego i funkcjonalnego. Wejście do budynku zostało osłonięte dwuspadowym zadaszeniem wspartym na słupkach. Na parterze część „dzienną” zagospodarowano optymalnie–w aneksie kuchennym (połączonym jedno przestrzennie z pokojem dziennym) wykonano ścianką tworzącą wnękę na lodówkę. W przeciwnym skrzydle budynku można wygospodarować miejsce nawet na dwa pokoje, łazienkę oraz małe pomieszczenie gospodarcze. Centralnie umieszczony komin pozwala zastosować ogrzewanie całego domu za pośrednictwem kominka. Istnieje możliwość powiększenia pomieszczenia gospodarczego poprzez przeniesienie łazienki w miejsce sąsiadującego z nim pokoju. Dzięki temu będzie można wykonać sporą kotłownie na biopaliwo. Na poddaszu zaprojektowano dwa niezależne pokoje i małą łazienkę tak, aby w niewielkim wnętrzu mogła zamieszkać nawet 4-5 osobowa rodzina. Standardowo budynek wyposażono w ogrzewanie elektryczne.

Dbamy o najlepszą ofertę dla naszych Inwestorów.

W kilka chwil wybierzesz z nami swój wymarzony dom.

Pomożemy Ci we wszystkich formalnościach, dostosujemy projekt do Twoich indywidualnych potrzeb.

Projekt wymarzonego domu może być u Ciebie nawet następnego dnia po zamówieniu.