Porozmawiaj z nami 7 dni w tygodniu 606 705 388, 692 715 791 lub napisz: biuro@domtodom.pl
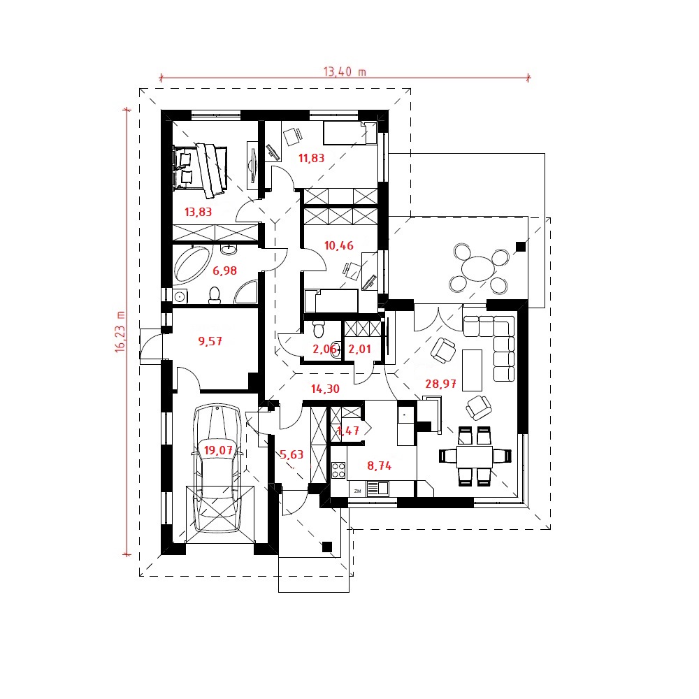
„JUKATAN” to nowoczesny projekt domu parterowego z jednostanowiskowym garażem o prostej bryle, przekrytej wielospadowym dachem. Od strony ogrodu zaprojektowano zadaszony taras, powiększający w atrakcyjny sposób przestrzeń wypoczynkową mieszkańców. W układzie wewnętrznym domu wyodrębniono strefę dzienną i nocną, zapewniając mieszkańcom swobodę ich niezależnego użytkowania. Przestronna część dzienna domu to komfortowy salon z otwarciem na taras oraz funkcjonalna, pełna naturalnego światła kuchnia z przyległą spiżarnią, która zapewnia dodatkowe miejsce do przechowywania produktów spożywczych. Wyraźnie wyodrębniona strefa nocna dostępna jest z korytarza. Komfortowy wypoczynek prywatny zapewniają domownikom trzy doświetlone i ustawne pokoje.
Jednym z wielu atutów zaprezentowanego projektu domu jest duża ilość miejsc, w którym można zamontować szafy ubraniowe, ułatwiające utrzymanie porządku oraz dodatkowe pomieszczenie gospodarcze zlokalizowane w centralnej części domu. Niewątpliwie doskonale sprawdzi się ono jako miejsce do przechowywania sprzętu niezbędnego do utrzymania porządku. Dostęp do zaplecza gospodarczego, które stanowi jednostanowiskowy garaż i kotłownia przewidziano z zewnątrz, a także z wnętrza domu - bezpośrednio z wiatrołapu.
„JUKATAN” to interesująca propozycja dla osób pragnących zamieszkać w nowoczesnym domu parterowym z zachowaniem rozsądnych kosztów budowy i późniejszej eksploatacji.

Dbamy o najlepszą ofertę dla naszych Inwestorów.

W kilka chwil wybierzesz z nami swój wymarzony dom.

Pomożemy Ci we wszystkich formalnościach, dostosujemy projekt do Twoich indywidualnych potrzeb.

Projekt wymarzonego domu może być u Ciebie nawet następnego dnia po zamówieniu.