Porozmawiaj z nami 7 dni w tygodniu 606 705 388, 692 715 791 lub napisz: biuro@domtodom.pl
| Powierzchnia użytkowa: | 133,31 m2 |
| Powierzchnia całkowita: | 191,98 m2 |
| Powierzchnia zabudowy: | 143,80 m2 |
| Kubatura: | 915,95 m3 |
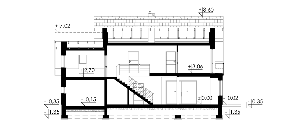
| Wysokość budynku: | 8,95 m |
| Wysokość do okapu: | b.d. |
Dom jednorodzinny, wolnostojący, niepodpiwniczony z poddaszem użytkowym i garażem jednostanowiskowym. Na układ funkcjonalny składają się salon z jadalnią i wyjściem na taras, kuchnia, spiżarnia, cztery pokoje, dwie łazienki, garderoba, pralnia z suszarnią, garaż, pomieszczenie gospodarcze, strych.

Dbamy o najlepszą ofertę dla naszych Inwestorów.

W kilka chwil wybierzesz z nami swój wymarzony dom.

Pomożemy Ci we wszystkich formalnościach, dostosujemy projekt do Twoich indywidualnych potrzeb.

Projekt wymarzonego domu może być u Ciebie nawet następnego dnia po zamówieniu.