Porozmawiaj z nami 7 dni w tygodniu 606 705 388, 692 715 791 lub napisz: biuro@domtodom.pl
| Powierzchnia użytkowa: | 262,50 m2 |
| Powierzchnia całkowita: | 318,30 m2 |
| Powierzchnia zabudowy: | 308,10 m2 |
| Kubatura: | 850,10 m3 |
| Wysokość budynku: | 8,53 m |
| Wysokość do okapu: | b.d. |
Ściany zewnętrzne: gazobeton, ceramika, silikaty
Strop: b.d.
Schody: dwubiegowe
Ścianka kolankowa:-
Dach: płaski, nachylenie 3°, pokrycie z papy bitumicznej, folii PVC, blachy
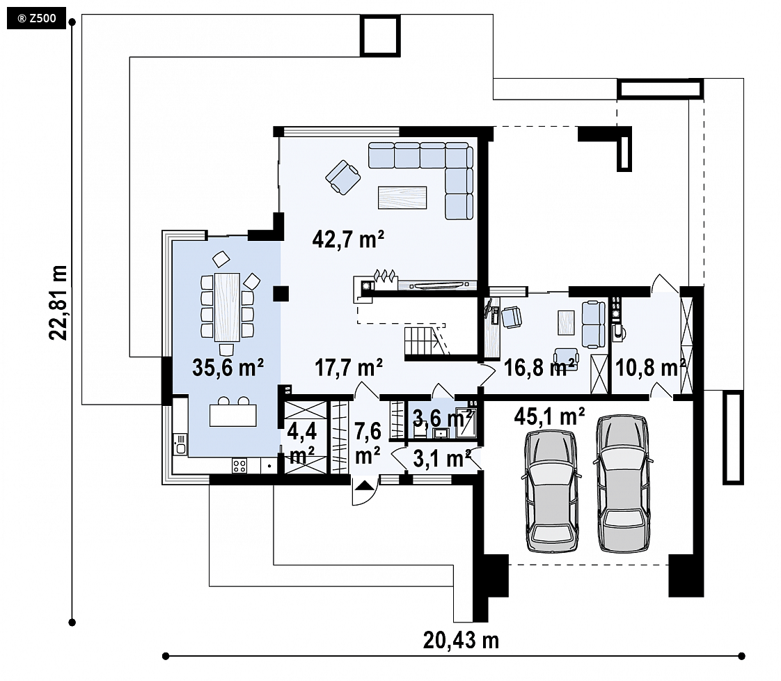
Zx127 jest projektem dużego, nowoczesnego, piętrowego domu, wywierającym ogromne wrażenie na każdym, kto gustuje w stylu modern. Proste, nakładające się na siebie geometryczne bryły, tworzą kilka oddzielnych warstw budynku, poprzeplatanych napawającymi ogromem powierzchni tarasami. Odcienie bieli i szarości możemy dobierać dowolnie, swobodnie dysponując tonacją kolorystyki elewacji. Magia dwukondygnacyjnych przeszkleń elewacji od strony ogrodu, rysuje na ścianach wnętrza domu tęczowe wzory, rozpromieniając jego wnętrze ciepłem słonecznych promieni. Nad dwustanowiskowym garażem uzyskaliśmy piękną powierzchnię tarasu przeznaczonego dla kąpieli słonecznych lub porannej gimnastyki na świeżym powietrzu. Wejście do domu zadaszono podcieniem, który chroni przed wiatrem, deszczem i śniegiem. W sieni zarówno po prawej jak i po lewej stronie mamy dużo miejsca przeznaczonego na szafy wnękowe, które pomieszczą przysłowiowe morze damskich butów i płaszczy. Parter przeznaczono na dzienną strefę mieszkalną. Obszerny salon połączono z jadalnią i aneksem kuchennym, z którym sąsiaduje spiżarka. Całość od salonu oddziela wyspa barowa. Ogromny atut w projekcie Zx127 stanowi antresola z dużymi pionowymi przeszkleniami. Dzięki nim możemy hodować tu większą ilość roślin, które sprawią, że z przyjemnością będziemy „bujać w obłokach” przed kominkiem zaczytani naszymi ulubionymi gatunkami literackimi. Z gabinetu pracy lub pokoju gościnnego wychodzimy na przestronny taras, którego ostateczny kształt zależeć będzie od wyrafinowanej fantazji właścicieli tego osobliwego budynku. Piętro domu to prywatna i nocna strefa naszej fortecy oraz kraina wypoczynku zarazem. Trzy duże tarasy, antresola, trzy pokoje, z czego jeden posiadający osobistą łazienkę i garderobę, pralnia i rozplanowane duże przestrzenie, przemienią nasz dom w prawdziwe królestwo upragnionego wytchnienia, które ukoi nasze skołatane nerwy. Dom ten dedykowany jest dla rodziny o wielkich sercach spragnionych wypoczynku.

Dbamy o najlepszą ofertę dla naszych Inwestorów.

W kilka chwil wybierzesz z nami swój wymarzony dom.

Pomożemy Ci we wszystkich formalnościach, dostosujemy projekt do Twoich indywidualnych potrzeb.

Projekt wymarzonego domu może być u Ciebie nawet następnego dnia po zamówieniu.