Porozmawiaj z nami 7 dni w tygodniu 606 705 388, 692 715 791 lub napisz: biuro@domtodom.pl
| Powierzchnia użytkowa: | 194,50 m2 |
| Powierzchnia całkowita: | 248,20 m2 |
| Powierzchnia zabudowy: | 182,90 m2 |
| Kubatura: | 660,80 m3 |
| Wysokość budynku: | 7,50 m |
| Wysokość do okapu: | b.d. |
Ściany zewnętrzne: gazobeton, ceramika, silikaty
Strop: żelbetowy
Schody: zabiegowe
Ścianka kolankowa: 142 cm
Dach: dwuspadowy, nachylenie 36°/2°, pokrycie z papy bitumicznej, gontu, płytki
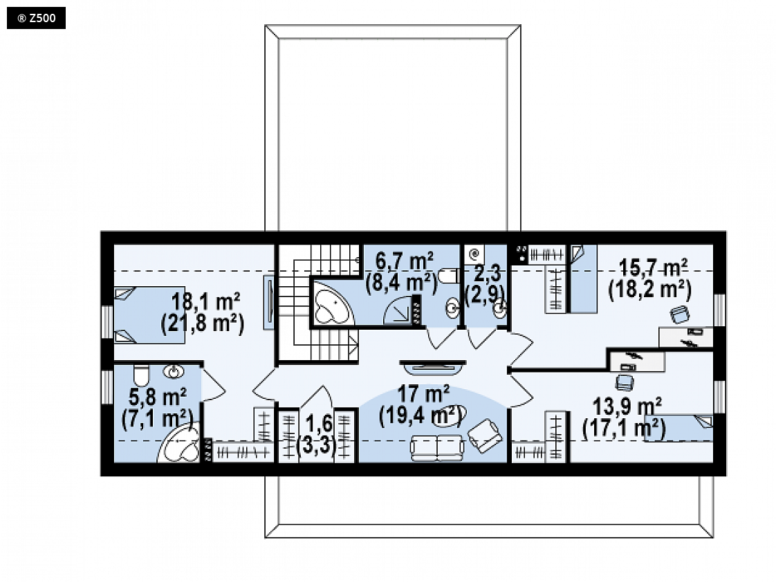
Projektdomu Zx48 jest doskonałą propozycją dla wymagających inwestorów, poszukujących ponadczasowej stylistyki za rozsądne pieniądze. Układ wnętrza domu jest bardzo czytelny. Do domu wchodzimy przez podcień. Po prawej stronie sieni znajduje się obszerny dwustanowiskowy garaż. Założenie projektowe zmniejszenia powierzchni użytkowej domu uzyskaliśmy poprzez zredukowanie do minimum przestrzeni komunikacyjnej, której trzonem są żelbetowe schody łączące niewielki hol na parterze z piętrem oraz zintegrowanie salonu, kuchni i jadalni. Piętro podzielone jest funkcjonalnie na zamkniętą strefę rodziców i część dla dzieci, które są połączone ze sobą niewielkim holem doświetlonym sporym przeszkleniem.Obszerna sypialnia, która oprócz wygodnego łóżka zmieści się jeszcze kącik do pracy, połączona jest z garderobą i wygodną doświetloną słońcem łazienką. Dzieci dysponują pokojami o zbliżonej powierzchni i wspólną łazienką. Elewacja może być również wykonana z płytek włókno-cementowych. Są popularne na polskim rynku oraz odporne na zmienne warunki atmosferyczne. Charakteryzuje się również niezwykłą lekkością, dzięki czemu nie ma potrzeby stosowania ciężkich konstrukcji więźby dachowej.

Dbamy o najlepszą ofertę dla naszych Inwestorów.

W kilka chwil wybierzesz z nami swój wymarzony dom.

Pomożemy Ci we wszystkich formalnościach, dostosujemy projekt do Twoich indywidualnych potrzeb.

Projekt wymarzonego domu może być u Ciebie nawet następnego dnia po zamówieniu.