Porozmawiaj z nami 7 dni w tygodniu 606 705 388, 692 715 791 lub napisz: biuro@domtodom.pl
| Powierzchnia użytkowa: | 142,40 m2 |
| Powierzchnia całkowita: | 186,60 m2 |
| Powierzchnia zabudowy: | 125,40 m2 |
| Kubatura: | 503,20 m3 |
| Wysokość budynku: | 7,57 m |
| Wysokość do okapu: | b.d. |
Ściany zewnętrzne: gazobeton, ceramika, silikaty
Strop: betonowy gęstożebrowy
Schody: dwubiegowe
Ścianka kolankowa: 100 cm
Dach: dwuspadowy, nachylenie 35°, pokrycie z dachówki, blachodachówki, blachy
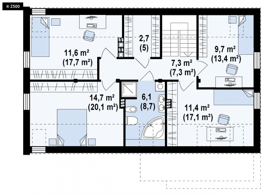
Zx38 to dom o zgrabnej formie. Ciekawe zestawienie różnych materiałów na elewacjach oraz rezygnacja z tradycyjnej formy dachu z okapem podkreślają nowoczesny charakter tego projektu. Wysunięty przed bryłę domu garaż z ciekawą formą zadaszenia tworzą atrakcyjną strefę wejściową. Część dzienna na parterze skupiona jest wokół centralnie umieszczonego kominka. Tworzą ją: salon z jadalnią oraz otwarta kuchnia z długim blatem roboczym oraz spiżarnią. Z holu dostępna jest łazienka z prysznicem, obszerne pomieszczenie gospodarcze oraz dodatkowy pokój. Może on, w zależności od potrzeb, pełnić funkcję sypialni, gabinetu lub pokoju dla gości. Program parteru uzupełnia jednostanowiskowy garaż dostępny z sieni. Na poddaszu mieszczą się 4 wygodne sypialnie oraz duża łazienka i garderoba. W dwóch sypialniach zaprojektowano nowoczesne okna dachowe z pionowym naświetlem. Zx38 to dom o prostej, zwartej bryle. Dach dwuspadowy oraz jeden komin czynią go energooszczędnym i tanim w budowie.

Dbamy o najlepszą ofertę dla naszych Inwestorów.

W kilka chwil wybierzesz z nami swój wymarzony dom.

Pomożemy Ci we wszystkich formalnościach, dostosujemy projekt do Twoich indywidualnych potrzeb.

Projekt wymarzonego domu może być u Ciebie nawet następnego dnia po zamówieniu.