Porozmawiaj z nami 7 dni w tygodniu 606 705 388, 692 715 791 lub napisz: biuro@domtodom.pl
| Powierzchnia użytkowa: | 139,40 m2 |
| Powierzchnia całkowita: | 157,80 m2 |
| Powierzchnia zabudowy: | 127,60 m2 |
| Kubatura: | 418,10 m3 |
| Wysokość budynku: | 7,85 m |
| Wysokość do okapu: | b.d. |
Ściany zewnętrzne: gazobeton, ceramika, silikaty
Strop: betonowy gęstożebrowy
Schody: zabiegowe
Ścianka kolankowa: 100 cm
Dach: wielospadowy, nachylenie 20°/15°, pokrycie z dachówki, blachodachówki, blachy
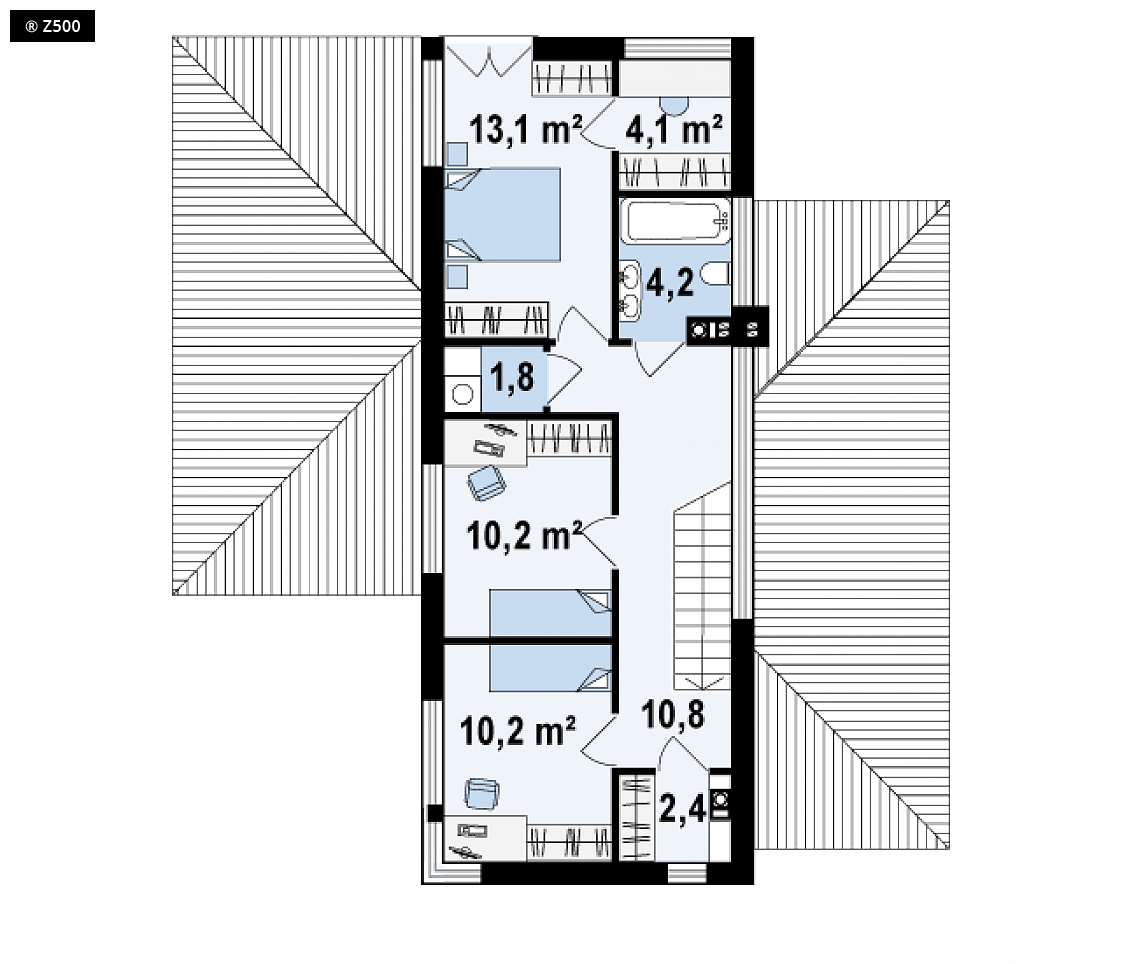
Zx25 to nowoczesny dom o ciekawej bryle i funkcjonalnym układzie pomieszczeń. Sprawdzi się także na działkach z wjazdem od południa. Atrakcyjny projekt o nowoczesnej linii i funkcjonalnym rozwiązaniu przestrzennym. Z dużej sieni, w której znalazło się miejsce dla sporej szafy, przechodzimy do części dziennej, którą tworzy wygodny i doświetlony salon połączony z jadalnią oraz częściowo otwartą kuchnią. Na parterze zaprojektowano również dodatkowy pokój na gabinet lub sypialnię z własną wygodną łazienką, oraz pomieszczenie gospodarcze z bezpośrednim wejściem z ogrodu. Na piętrze zlokalizowano strefę nocną. Są tu trzy sypialnie, łazienka, pralnia oraz ogólnodostępna garderoba lub schowek. Główną sypialnię wzbogacono o komfortową osobną garderobę z toaletką i szerokim pasmowym oknem. Takie same okna doświetlają również schody i pośrednio hol główny.

Dbamy o najlepszą ofertę dla naszych Inwestorów.

W kilka chwil wybierzesz z nami swój wymarzony dom.

Pomożemy Ci we wszystkich formalnościach, dostosujemy projekt do Twoich indywidualnych potrzeb.

Projekt wymarzonego domu może być u Ciebie nawet następnego dnia po zamówieniu.