Porozmawiaj z nami 7 dni w tygodniu 606 705 388, 692 715 791 lub napisz: biuro@domtodom.pl
| Powierzchnia użytkowa: | 173,20 m2 |
| Powierzchnia całkowita: | 234,20 m2 |
| Powierzchnia zabudowy: | 171,00 m2 |
| Kubatura: | 590,00 m3 |
| Wysokość budynku: | 2,70 m |
| Wysokość do okapu: | b.d. |
Ściany zewnętrzne: gazobeton, ceramika, silikaty
Strop: betonowy gęstożebrowy
Schody: dwubiegowe
Ścianka kolankowa: 87 cm
Dach: dwuspadowy, nachylenie 35°, pokrycie z dachówki, blachodachówki
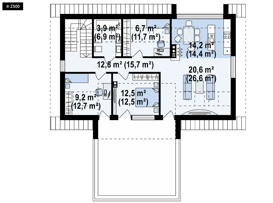
Nowoczesna, biało-szara bryła. Dach dwuspadowy, którego dodatkową zaletą oprócz atrakcyjnego kształtu, jest niska cena jego wykonania. Parter zawiera obszerną i funkcjonalną przestrzeń. Salon połączony z jadalnią i aneksem kuchennym posiada dwa wyjścia na zewnątrz. Dzięki temu posiłki spożywane na tarasie staną się naszym codziennym luksusem. Wyspa barowa w aneksie kuchennym zostanie doceniona przez każdą gospodynię. Dwa pokoje mogą zostać przeznaczone dla osób starszych, zaś młodzi zamieszkają na górze. Wspólne będzie jedynie pomieszczenie gospodarcze i pralnia, ponieważ strych użytkowy również posiada oddzielną kuchnię i jadalnię. Dzięki temu każda z pań może wieść prym na „swoich włościach”. Na górze zaplanowano trzy sypialnie i łazienkę. Dodatkowy atut stanowi wielki taras, który można wykorzystywać wedle swojego uznania i potrzeb. Projekt Z360 został zaprojektowany z myślą o dwupokoleniowej rodzinie, którą łączą na tyle silne więzi rodzinne aby zamieszkiwać pod jednym dachem. Uwzględnia również potrzebę poczucia niezależności, czego dowód stanowią dwie kuchnie. Dzięki temu każdy będzie czuł się u siebie swobodnie.

Dbamy o najlepszą ofertę dla naszych Inwestorów.

W kilka chwil wybierzesz z nami swój wymarzony dom.

Pomożemy Ci we wszystkich formalnościach, dostosujemy projekt do Twoich indywidualnych potrzeb.

Projekt wymarzonego domu może być u Ciebie nawet następnego dnia po zamówieniu.