Porozmawiaj z nami 7 dni w tygodniu 606 705 388, 692 715 791 lub napisz: biuro@domtodom.pl
| Powierzchnia użytkowa: | 160,70 m2 |
| Powierzchnia całkowita: | 208,60 m2 |
| Powierzchnia zabudowy: | 134,50 m2 |
| Kubatura: | 512,52 m3 |
| Wysokość budynku: | 7,45 m |
| Wysokość do okapu: | b.d. |
Ściany zewnętrzne: gazobeton, ceramika, silikaty
Strop: betonowy gęstożebrowy
Schody: zabiegowe
Ścianka kolankowa: 112 cm
Dach: dwuspadowy, nachylenie 38°/35°, pokrycie z dachówki, blachodachówki, blachy
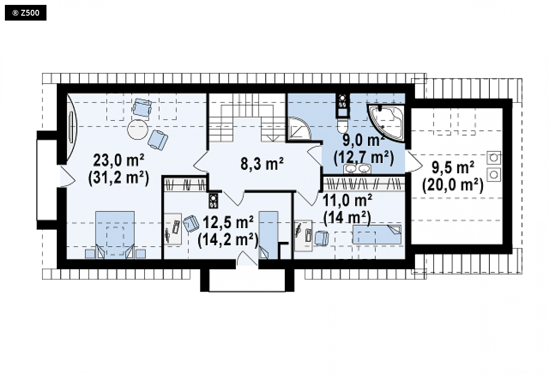
Z157 to funkcjonalny i komfortowy projekt domu z poddaszem użytkowym i garażem w bryle. Może być wykorzystany także na nietypową działkę - funkcjonuje jako wersja bez okien w tylnej elewacji. Klasyczny styl bryły idzie w parze z prostotą konstrukcji i łatwością budowy. Kamienne elementy elewacji współgrają z naturalną barwą ścian, a szklane elementy - zadaszenia i balustrady - sprawiają, że dom nabiera charakteru współczesnej rezydencji. Dodatkową ozdobą domu są lukarny i wygodne balkony na piętrze. Wnętrze domu jest przestronne i jasne. Salon jest widny i naturalnie doświetlony. Centralnie usytuowany kominek jest doskonale widoczny z każdego zakątka salonu. Wygodną kuchnię wydzieloną od salonu z pewnością docenią wszyscy domownicy, bo można w niej szaleć nie zakłócając spokoju innym. Przez duże okno, można podziwiać pięknie urządzony ogród. Na parterze znajduje się także wygodny, dobrze nasłoneczniony pokój. Może on z powodzeniem pełnić rolę pokoju gościnnego, jak i gabinetu do pracy. Wyjątkowe w tym projekcie są schody typu U, które stwarzają klimat reprezentacyjny, niczym w rezydencji. Piętro to część nocna, w której zlokalizowane są trzy przestronne sypialnie. Każda posiada wymiary zapewniające komfort wypoczynku. Do dyspozycji domowników są również dwa balkony i duża pralnio - suszarnia. Praktyczna łazienka z łatwością pomieści sporą wannę i wygodny prysznic. Z157 to dobry wybór dla rodzin szukających wygodnego i praktycznego domu na lata.

Dbamy o najlepszą ofertę dla naszych Inwestorów.

W kilka chwil wybierzesz z nami swój wymarzony dom.

Pomożemy Ci we wszystkich formalnościach, dostosujemy projekt do Twoich indywidualnych potrzeb.

Projekt wymarzonego domu może być u Ciebie nawet następnego dnia po zamówieniu.